STROJNISTVO.com • Poglej temo - Nadstreše

Nadstreše

Konstruiranje naprav, strojev, prenosi, gonila...

Moderator: -M-

Nadstreše

OdgovorNapisal/-a TomažČ » 19.10.2023 9:22

Pozdravljeni,

delam nadstrešek 5x11m, višine 4m po spodnji sliki.

https://photos.app.goo.gl/QMvnCs2rEV5GtWN7A

Lokacija je goriška cca 60m nad morjem.

Prosil bi vas, če mi kdo lahko pove približno kakšni naj bodo nosilci in spoji, ter kaj vse je treba upoštevati pri izračunu.

Poleg tega me zanima ali je bolje dati na zid C profil na katerega se nosilec samo položi, ali je bolje naresti togi spoj in nosilec direktno sidrati v zid?

Končno kontrolo bom naredil, rabim pa pomoč glede

Hvala in lp,
Tomaž
TomažČ
Novinec
Novinec
 
Prispevkov: 2
Pridružen: 19.10.2023 8:51

Re: Nadstreše

OdgovorNapisal/-a Žerjavar » 19.10.2023 9:41

Ne razumem tvoje zamisli. Preberi si sosednjo temo z podobnim imenom in začni s skico tlorisa (obris kritine in položaj stebrov (zid???). Tip kritine?
Vrtičkarstvo je boljše od žerjavarstva
Žerjavar
Strokovnjak
Strokovnjak
 
Prispevkov: 8666
Pridružen: 19.5.2007 14:33

Re: Nadstreše

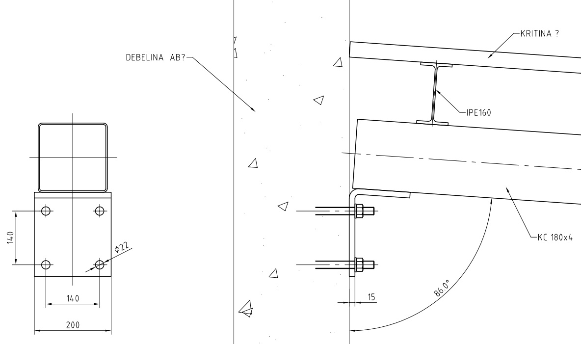
OdgovorNapisal/-a tehnik » 19.10.2023 11:44

Skica za boljše razumevanje. Profili in vijaki so samo kot informacija.
Priponke
Nad_1.jpg
Nad_1.jpg (128.96 KiB) Videno 6222 krat
Nad_2.jpg
Nad_2.jpg (120.22 KiB) Videno 6229 krat
Nad_3.jpg
Nad_3.jpg (69.06 KiB) Videno 6229 krat
Zadnjič spremenil tehnik, dne 19.10.2023 12:04, skupaj popravljeno 1 krat.
tehnik
Strokovnjak
Strokovnjak
 
Prispevkov: 542
Pridružen: 4.11.2002 13:55

Re: Nadstreše

OdgovorNapisal/-a TomažČ » 19.10.2023 12:04

Hvala za slike, nekaj takega bo ja.
TomažČ
Novinec
Novinec
 
Prispevkov: 2
Pridružen: 19.10.2023 8:51


Vrni se na Konstruiranje in mehanika

Kdo je na strani

Po forumu brska: 0 registriranih uporabnikov in 2 gostov