epošta: info@strojnistvo.com
(C) 2001 - 2012 STROJNISTVO.com
Moderator: -M-


Žerjavar napisal/-a:Vrata? Ne vidim nobenega tečaja. Običajno je problem tečaj in njegova pritrditev na vrata in na fiksni nosilec.
Konzolno vpetje? Povej, kam, kako vpeto (morda skica),
Polna cev? Cev je običajno votla, s čim pa je napolnjena

ProMixeR napisal/-a:. Običajno je problem tečaj in njegova pritrditev na vrata in na fiksni nosilec.
Vpetje bi bilo v steno, kjer bi iz druge strani to pritrdil z podložko in matico.
Glede tečajev na vratih pa so recimo temu "manualni tečaji" ki vrata odprejo za 90 stopinj..

ProMixeR napisal/-a:Pozdravljeni,
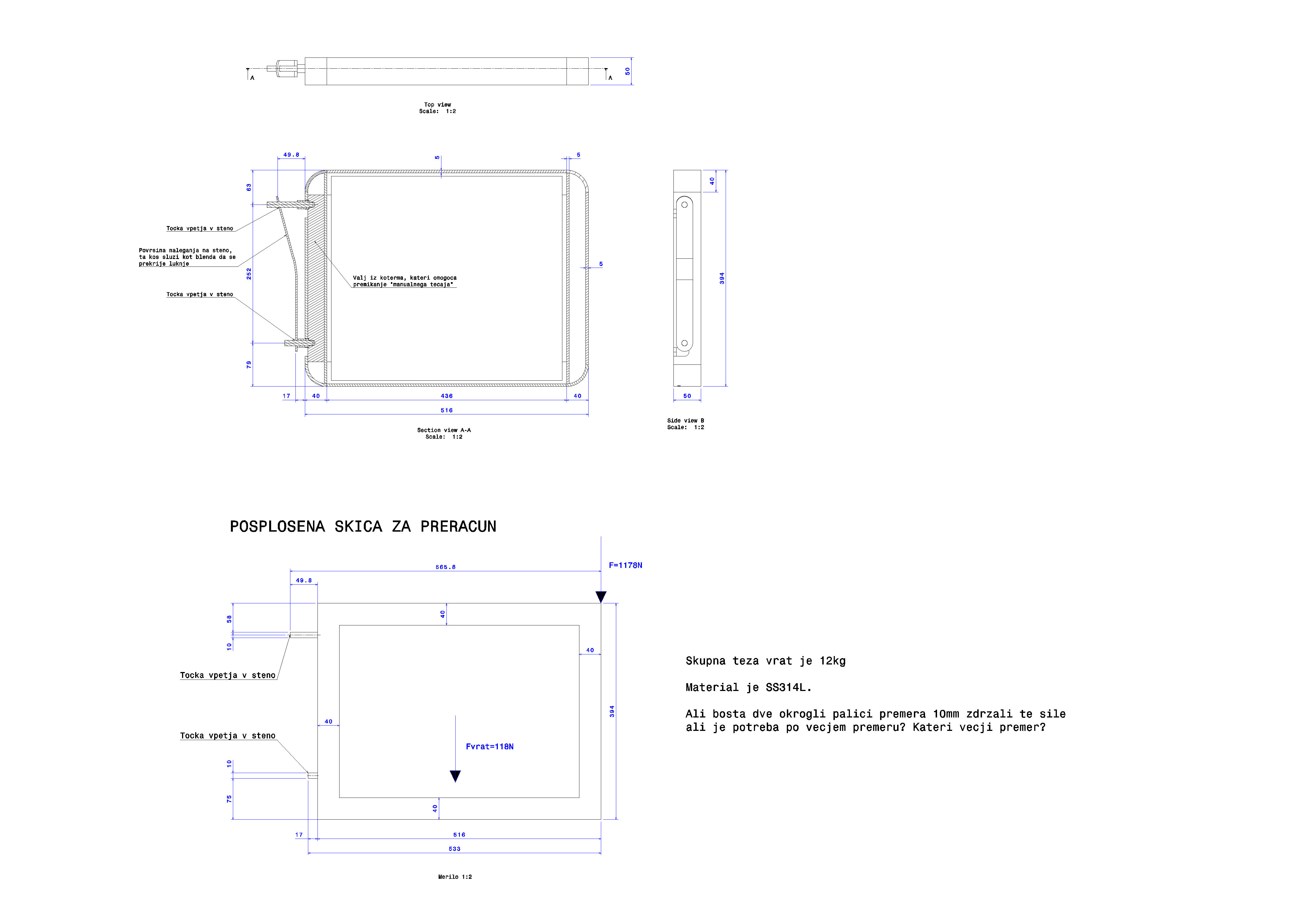
imam primer vrat, ki so konzolno vpeta na desni strani z dvema polnima palicama (material je SS314L) in me zanima kakšen je potreben premer teh dveh palic da zdrzita silo 120kg tezkega človeka čisto na koncu vrat, kjer je največji moment. Sedaj imam vrisani dve palici premera 10mm, vendar me skrbi da bo to premalo, preračun mi pa pokaze skoraj 4mm, brez varnostnega faktorja, ampak mislim da ne izračunam pravilno.
V primeru da sta dve polni cevi potrebni v velikosti premera 16mm ali več, bi potrem rajši naredil vpetje na tri cevi.
Zato bi lepo prosil, če bi si kdo lahko vzel čas in preračunal potreben premer cevi, da se vrata ne bodo povesila.
Če potrebujete slučajno še kak podatek pa prosim povejte.
Vnaprej se zahvaljujem za vaš dragoceni čas.
Lp

Žerjavar napisal/-a:ProMixeR napisal/-a:. Običajno je problem tečaj in njegova pritrditev na vrata in na fiksni nosilec.
Vpetje bi bilo v steno, kjer bi iz druge strani to pritrdil z podložko in matico.
Glede tečajev na vratih pa so recimo temu "manualni tečaji" ki vrata odprejo za 90 stopinj..
Za Manualni tečaj še nisem slišal. Tudi iz slike ne morem izločiti tečaja (panta). Mogoče narediš skico vertikalni presek po osi palice 10mm, da se vidi pritrditev tečaja. Materjal in debelina stene ?? za sidranje palice z matico na obeh koncih.
Kakšno funkcijo ima pločevinasti trak, ki je nataknjen na obe siderni palici?

lesy1 napisal/-a:ProMixeR napisal/-a:Pozdravljeni,
imam primer vrat, ki so konzolno vpeta na desni strani z dvema polnima palicama (material je SS314L) in me zanima kakšen je potreben premer teh dveh palic da zdrzita silo 120kg tezkega človeka čisto na koncu vrat, kjer je največji moment. Sedaj imam vrisani dve palici premera 10mm, vendar me skrbi da bo to premalo, preračun mi pa pokaze skoraj 4mm, brez varnostnega faktorja, ampak mislim da ne izračunam pravilno.
V primeru da sta dve polni cevi potrebni v velikosti premera 16mm ali več, bi potrem rajši naredil vpetje na tri cevi.
Zato bi lepo prosil, če bi si kdo lahko vzel čas in preračunal potreben premer cevi, da se vrata ne bodo povesila.
Če potrebujete slučajno še kak podatek pa prosim povejte.
Vnaprej se zahvaljujem za vaš dragoceni čas.
Lp
Če prav razumem....tale vrata so z dvema navojnima palicama M10 pritrjene skozi zid.
Zid je ? beton? opeka ?....les???
Vrata....btw...koliko so težka sama vrata?
Vrata se odprejo tako, da se jih prevzdigne in zarotira?
Imajo dva možna položaja, kjer se zaskočijo?
Ko so odprta na po njih hodiš...po zgornjem robu (1200N)?
Razumem prav?
LPL



Žerjavar napisal/-a: Mogoče narediš skico vertikalni presek po osi palice 10mm, da se vidi pritrditev tečaja. Materjal in debelina stene ?? za sidranje palice z matico na obeh koncih.
Kakšno funkcijo ima pločevinasti trak, ki je nataknjen na obe siderni palici?

vili napisal/-a:ja tisti spoj vijaka in koterma je kritičen, v kotrmu ti bo prestriglo gevinte..., kakšne trdnostne lastnosti pa ima koterm pa nimam pojma..., za ziher skoznja luknja in nizka matica, za njo zagreziš luknjo - sedež...

Žerjavar napisal/-a:Žerjavar napisal/-a: Mogoče narediš skico vertikalni presek po osi palice 10mm, da se vidi pritrditev tečaja. Materjal in debelina stene ?? za sidranje palice z matico na obeh koncih.
Kakšno funkcijo ima pločevinasti trak, ki je nataknjen na obe siderni palici?
Težko ni je vleči podatke iz tebe. Lahko pa rečem da je za siderno palico potrebna kontrola upogiba (vertik.sila na razdalji med prijemališčem sidranja in okvirja vrat), striga in natega (od momenta teže človeka in sidranja v zid).

ProMixeR napisal/-a:saj sem naredil nacrt glede vsega kar ste zahtevali. Zraven so podatki in mere.
Sedaj sem dodal se tretjo palico v sredini in bomo videli kaj se bo v praksi zgodilo, če že ne gre z preračunom.

Žerjavar napisal/-a:ProMixeR napisal/-a:saj sem naredil nacrt glede vsega kar ste zahtevali. Zraven so podatki in mere.
Sedaj sem dodal se tretjo palico v sredini in bomo videli kaj se bo v praksi zgodilo, če že ne gre z preračunom.
Predvidevam, da je horizontalna v zid vpeta palica na koncu zvarjena z vertikalno palico ki služi kot os sukanja vrat (odpiranje / zapiranje). prav gotovo mi manjka razdalja od sredine debeline zidu do vertikalne osi in do roba okvirja vrat.
Tretja palica realno ne daje nobene prednosti. lahko pa se računsko prikaže prednost zaradi napačne vstave podatkov. Uporablja se pri večjih vratih, ki so razmeroma majhne debeline za stabilizacijo okvirja vrat. Nič pa ne pomeni za obremenitev ene palice, ker zaradi odstopanja vertikale med fiksnim in pomičnim delom tečaja, vertikalno obremenitev prenaša je en tečaj.

ProMixeR napisal/-a: sem dodal te mere katere ste omenili v pogled A-A.
Prilagam novo sliko z dodanimi merami.

Vrni se na Konstruiranje in mehanika
Po forumu brska: 0 registriranih uporabnikov in 2 gostov