epošta: info@strojnistvo.com
(C) 2001 - 2012 STROJNISTVO.com
Moderator: -M-
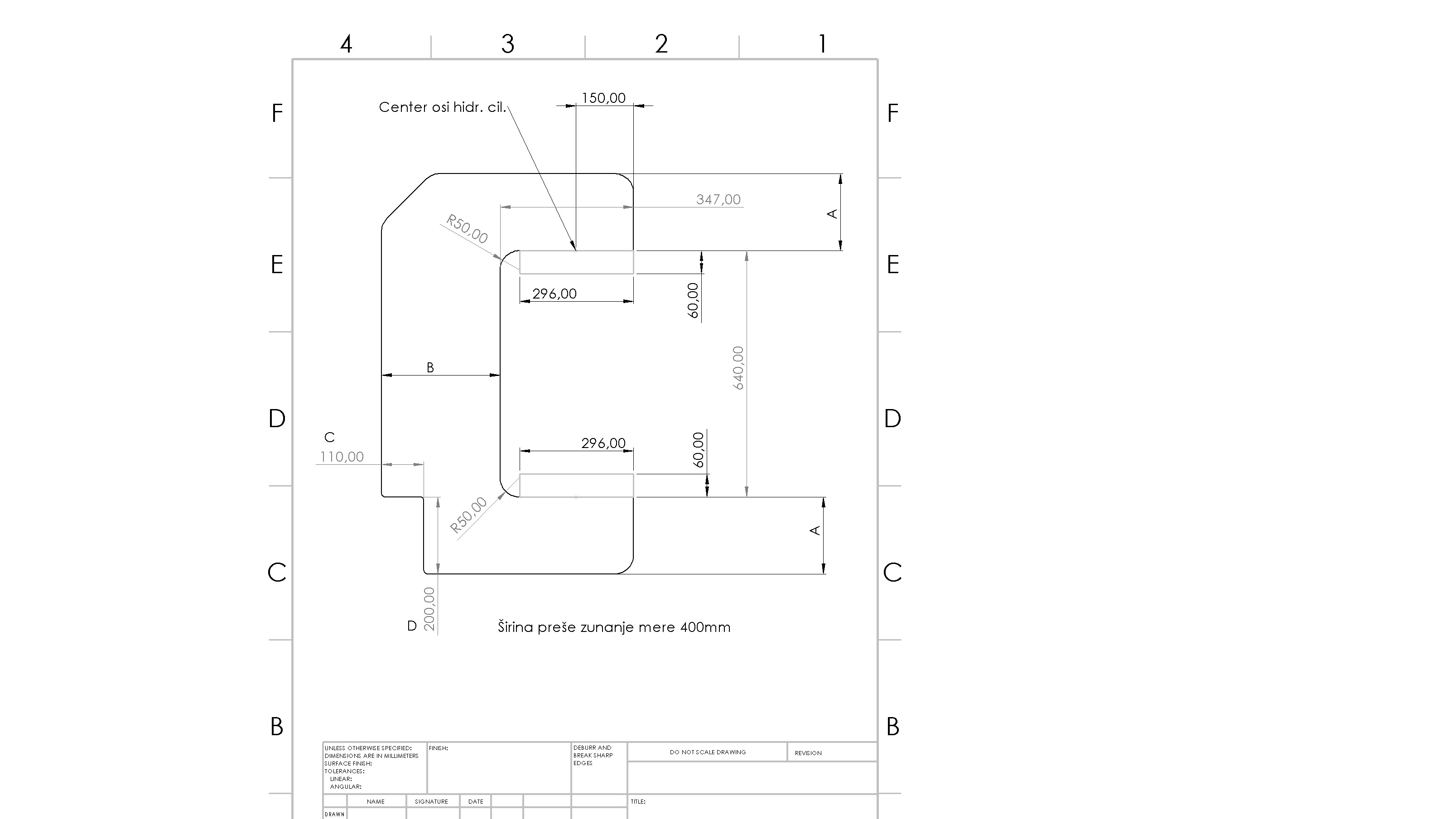
ELED napisal/-a: Dve C stranice 400mm narazen.


ELED napisal/-a: Koliko oslabi dimentija C in D.

Vrni se na Konstruiranje in mehanika
Po forumu brska: 0 registriranih uporabnikov in 1 gost