epošta: info@strojnistvo.com
(C) 2001 - 2012 STROJNISTVO.com
Moderator: -M-


tehnik napisal/-a:Manjka še podatek za ....
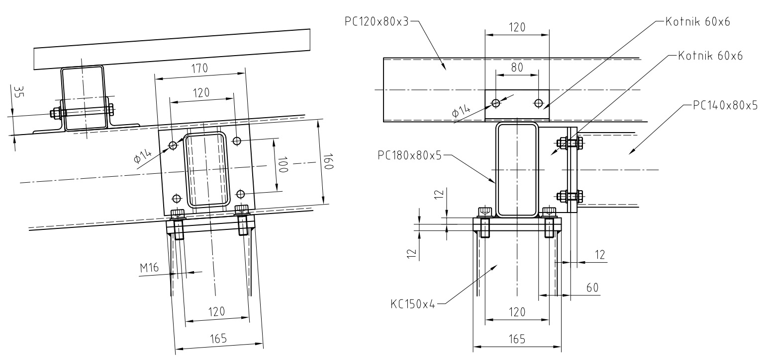
Za pritrditev nosilcev kritine bi mogoče raje izbrali ploščato 60x6 namesto kotnikov?




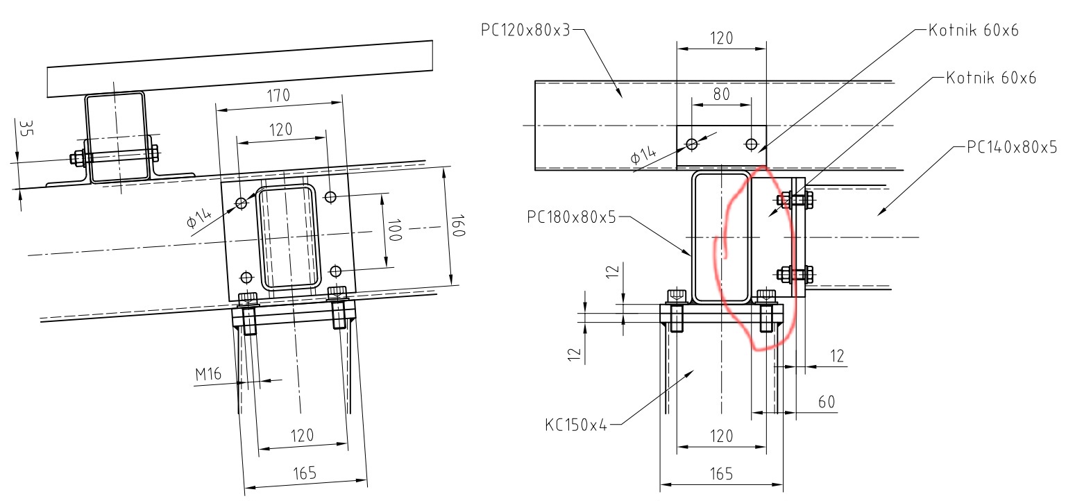
tehnik napisal/-a:Da. Kotnik (2x) je zavarjen na cev PC180x80x5. Tloris:


tehnik napisal/-a:Prirobnica nad stebrom je večja, da je prostor za kotni zvar z zunanje strani. Vi naredite preračun za celoten detajl pa ga potem narišem.

Žerjavar napisal/-a:Povezava stebrov (prečna lega) bo verjetno PC 80 x 140 x 5. Pritrdiš podobno kot imaš predlog za nosilce kritine, s tem da uporabiš kotnika LNP 60 x 6 ter dva vijaka M12, 5.5, na razmaku 100 mm. Razporedi ostale nosilce kritine na razmaku manj kot 160 cm.

Nosilci kritine so PC 80x120x3. Prečna lega je PC 80x140x5. To je razlika v višini
Verjetno. Tudi močnejša podpora kritine, ki prevzema funkcijo prečne lege še ni dokončna.Povezava stebrov (prečna lega) bo verjetno PC 80 x 140 x 5. Pritrdiš podobno kot imaš predlog za nosilce kritine


Primorec napisal/-a: povejte ce je potreben se kaksen podatek,


Tudi tu mora svoje povedati krovec, odvisno, kako bo izvedel zaključek kritine na obeh koncih. Spodnji rob lege je dobrih 300mm nižje od kritine. Verjetno ne bo obroba tako široka (visoka), da bi pokrila ves konec lege. Tudi na nizki strani je možno, da bo skril žleb za vodo pod obrobo in bi lega v dolžini kritine bila v napoto.Primorec napisal/-a:..edino L lege = 775...se pravi 10cm krajsa od skupne dolzine kritine?

Vrni se na Konstruiranje in mehanika
Po forumu brska: 0 registriranih uporabnikov in 2 gostov