Pomoč pri izbiri pravih nosilcev in ustrezne AB plošče
Moderator: -M-
Re: Pomoč pri izbiri pravih nosilcev in ustrezne AB plošče
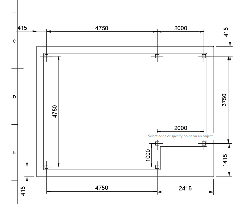
rozancomanija napisal/-a:. Predvidene mere so razvidne iz spodnje slike.
Stebri (sredina - sredina) razmak, ti si dal mero svetle širine.
Obris kritine vezana na položaj stebra.
Vse se enostavno prikaže samo v tlorisu. Zakaj bi mere sešteval in odšteval, da bi dobil željeno (uporabno) mero. Ločiti teoretične mere (izračun statike) od mer za uporabo objekta.
Vrtičkarstvo je boljše od žerjavarstva
- Žerjavar
- Strokovnjak

- Prispevkov: 8666
- Pridružen: 19.5.2007 14:33
Re: Pomoč pri izbiri pravih nosilcev in ustrezne AB plošče
Stebri (sredina - sredina) razmak, ti si dal mero svetle širine.
Napača. Mi še ni uspelo ugotoviti, kako meriti iz sredine elementa, tako da sem dal i zmere tako, da se steber "odšteje" iz razdalje. To pomeni, da je razdalja med stebroma enaka, kot bi meril sredina-sredina.
Obris kritine vezana na položaj stebra.
Sem dodal vse izmere sedaj na tloris, upam da ni preveč zmede sedaj.
- rozancomanija
- Sodelavec

- Prispevkov: 62
- Pridružen: 25.9.2023 12:00
Re: Pomoč pri izbiri pravih nosilcev in ustrezne AB plošče
rozancomanija napisal/-a:Mi še ni uspelo ugotoviti, kako meriti iz sredine elementa,]
Na modeliranje se ne spoznam, še nisem spoznal prednosti modeliranja, da bi se tega lotil. Pri risanju palične konstrukcije (elementi imajo izrazito dolžino) se najprej nariše sistemske črte in na vsako stran te črte profil. Kote "razmak, razpon" se kotira sistemske črte. Če rišemo tloris stebre in kritino so stebri kvadrat s svojim središčem. kritina pa le črta zunanjega roba. Vsaj na strani odtekajoče vode ni noben element konstrukcije tako daleč kot kritina.
Vrtičkarstvo je boljše od žerjavarstva
- Žerjavar
- Strokovnjak

- Prispevkov: 8666
- Pridružen: 19.5.2007 14:33
Re: Pomoč pri izbiri pravih nosilcev in ustrezne AB plošče
Če rišemo tloris stebre in kritino so stebri kvadrat s svojim središčem. kritina pa le črta zunanjega roba. Vsaj na strani odtekajoče vode ni noben element konstrukcije tako daleč kot kritina.
Ste imeli v mislih nekako takole:
- rozancomanija
- Sodelavec

- Prispevkov: 62
- Pridružen: 25.9.2023 12:00
Re: Pomoč pri izbiri pravih nosilcev in ustrezne AB plošče
Špirovci: že znano 14 x 18 cm, razen: točno nad stebri 18 x 18 (služijo kot povezava stebrov) in krajni zunanji lahko precej manj.
Stebri 18 x 18 cm. Roke dolžina 100 + cm,proti legi in proti tebelejšemu špirovcu po 2 kom 4 X 12 cm objameta steber in lego, povezano z vijakom M12 skozi vse 3 kose lesa. Vijak lahko izdelaš iz okroglega 10 mm in konca z navojem M10 dolžine le za potrebe matice. + velike podložke (5 * D). Steber spodaj 4 x jekleno sidro M 10 ali podstavek vbetoniran.
Stebri 18 x 18 cm. Roke dolžina 100 + cm,proti legi in proti tebelejšemu špirovcu po 2 kom 4 X 12 cm objameta steber in lego, povezano z vijakom M12 skozi vse 3 kose lesa. Vijak lahko izdelaš iz okroglega 10 mm in konca z navojem M10 dolžine le za potrebe matice. + velike podložke (5 * D). Steber spodaj 4 x jekleno sidro M 10 ali podstavek vbetoniran.
Vrtičkarstvo je boljše od žerjavarstva
- Žerjavar
- Strokovnjak

- Prispevkov: 8666
- Pridružen: 19.5.2007 14:33
Re: Pomoč pri izbiri pravih nosilcev in ustrezne AB plošče
Najprej hvala za vse izračune.
Če prav razumem, je ideja, da povezave med stebri v smeri špirovcev ni in to vlogo prevzame ojačani špirovec?
Iz zgornjega vprašanje se potem navezujem naprej na:
Roka proti legi, vse jasno. Roko proti debelejšmu špirovcu pa ne razumem povsem. Namreč teber in špirovec nista podkotom 90 stopinj, posledično bo roka podpirala dva elemta, ki sta bolj odprtega kota. Razumem pravilno?
Prosim za dodatno pojeasnilo tega spoja, iz napisanega ne razberem ugotoviti, kako bi to izgledalo.
Vse jasno okrog tega.
Preostane samo še izračun dimenzije lege.
Špirovci: že znano 14 x 18 cm, razen: točno nad stebri 18 x 18 (služijo kot povezava stebrov) in krajni zunanji lahko precej manj.
Če prav razumem, je ideja, da povezave med stebri v smeri špirovcev ni in to vlogo prevzame ojačani špirovec?
Iz zgornjega vprašanje se potem navezujem naprej na:
Roke dolžina 100 + cm,proti legi in proti tebelejšemu špirovcu po 2 kom 4 X 12 cm objameta steber in lego, povezano z vijakom M12 skozi vse 3 kose lesa.
Roka proti legi, vse jasno. Roko proti debelejšmu špirovcu pa ne razumem povsem. Namreč teber in špirovec nista podkotom 90 stopinj, posledično bo roka podpirala dva elemta, ki sta bolj odprtega kota. Razumem pravilno?
povezano z vijakom M12 skozi vse 3 kose lesa.
Prosim za dodatno pojeasnilo tega spoja, iz napisanega ne razberem ugotoviti, kako bi to izgledalo.
Steber spodaj 4 x jekleno sidro M 10 ali podstavek vbetoniran.
Vse jasno okrog tega.
Preostane samo še izračun dimenzije lege.
- rozancomanija
- Sodelavec

- Prispevkov: 62
- Pridružen: 25.9.2023 12:00
Re: Pomoč pri izbiri pravih nosilcev in ustrezne AB plošče
@zerjavar
Bi se dalo dobiti fotografije takega izračuna. Na spletu sem dobil par uporabnih diplom, samo vseeno.
Bi se dalo dobiti fotografije takega izračuna. Na spletu sem dobil par uporabnih diplom, samo vseeno.
- ktm2002
- Strokovnjak

- Prispevkov: 408
- Pridružen: 12.5.2016 9:47
Re: Pomoč pri izbiri pravih nosilcev in ustrezne AB plošče
rozancomanija napisal/-a: da povezave med stebri v smeri špirovcev ni
povezano z vijakom M12 skozi vse 3 kose lesa.
Preostane samo še izračun dimenzije lege.
Točno.
Ni razloga, da pri drugačnem kotu ne more biti roke.
Roka 4 cm objame steber in lego (špirovec) 18 cm in dobimo paket 4+18+4 cm, ki ga povežemo z vijakom skozi M 12 in 2x velika podložka, dolžine 30 cm.
Se opravičujem, sem spregledal, da nisem vpisal. Lega je 18 x 24 cm.
Vrtičkarstvo je boljše od žerjavarstva
- Žerjavar
- Strokovnjak

- Prispevkov: 8666
- Pridružen: 19.5.2007 14:33
Re: Pomoč pri izbiri pravih nosilcev in ustrezne AB plošče
ktm2002 napisal/-a:Bi se dalo dobiti fotografije takega izračuna.
Težko. Bi moral posebej pisati v ta namen. Že precej dolgo ne delam teh stvari za denar, da bi moral izdelek imeti formalno obliko. V excelu imam programčke za računanje stvari, ki se ponavljajo z drugačnimi podatki. Interesentu pa povem le rezultat.
Prilagam fotko (del) izračuna nadstreška. Izberem najprej materjal in trajanje obremenitve lesa, nato pa podatke (zeleno), priporočilo za spremembo je modro, bistvo rezultatov je rdeče.
- Priponke
-
- KTM-nadstr.png (97.23 KiB) Videno 19045 krat
Vrtičkarstvo je boljše od žerjavarstva
- Žerjavar
- Strokovnjak

- Prispevkov: 8666
- Pridružen: 19.5.2007 14:33
Re: Pomoč pri izbiri pravih nosilcev in ustrezne AB plošče
Ni razloga, da pri drugačnem kotu ne more biti roke.
Roka 4 cm objame steber in lego (špirovec) 18 cm in dobimo paket 4+18+4 cm, ki ga povežemo z vijakom skozi M 12 in 2x velika podložka, dolžine 30 cm.
Hvala za pojasnilo. Do sedaj nisem bil pozoren na tako izvedbo, sem pa jih po prebranem predlogu zasledil nekaj v okolici.
Se opravičujem, sem spregledal, da nisem vpisal. Lega je 18 x 24 cm.
Sploh ni problema.
Hvala za vse podane izračune in mere, mi bojo v ogromno pomoč.
Pa še eno nepovezano vprašanje: kaj je po vašem menju boljše za napeljavo vode skozi betonsko ploščo: pocinkana cev ali alkaten cev?
- rozancomanija
- Sodelavec

- Prispevkov: 62
- Pridružen: 25.9.2023 12:00
Re: Pomoč pri izbiri pravih nosilcev in ustrezne AB plošče
rozancomanija napisal/-a: kaj je po vašem menju boljše za napeljavo vode skozi betonsko ploščo: pocinkana cev ali alkaten cev?
Zaradi temperaturne razteznosti ne sme biti zlepljena z betonom. Če se bojiš, da bo beton s časom poškodoval cev, jo zaščiti z ustreznim materjalom (tanka pločevina, plastika, ....)
Vrtičkarstvo je boljše od žerjavarstva
- Žerjavar
- Strokovnjak

- Prispevkov: 8666
- Pridružen: 19.5.2007 14:33
Re: Pomoč pri izbiri pravih nosilcev in ustrezne AB plošče
Zaradi temperaturne razteznosti ne sme biti zlepljena z betonom. Če se bojiš, da bo beton s časom poškodoval cev, jo zaščiti z ustreznim materjalom (tanka pločevina, plastika, ....)
To me skrbi ja. Bom zaščitil. Kaj je pa bolje dati za preboj, alkaten cev ali staro dobro pocinkano cev?
- rozancomanija
- Sodelavec

- Prispevkov: 62
- Pridružen: 25.9.2023 12:00
Re: Pomoč pri izbiri pravih nosilcev in ustrezne AB plošče
Zabetoniraj zaščitno rebrasto cev Stigmaflex v betonsko ploščo in potem čez to cev napelji alkaten za vodo. Kar ostane prostega pa potem zatesniš, da nimaš vhoda v objekt za razno golazen. Pa premer daj kar malo večji, kot se ti zdi dovolj, ker je potem manj truda potrebnega ko alkaten cev skozi rineš.
- grega09
- Strokovnjak

- Prispevkov: 2166
- Pridružen: 7.4.2005 21:47
- fikus_
- Strokovnjak

- Prispevkov: 2434
- Pridružen: 25.4.2005 6:07
Re: Pomoč pri izbiri pravih nosilcev in ustrezne AB plošče
Zabetoniraj zaščitno rebrasto cev Stigmaflex v betonsko ploščo in potem čez to cev napelji alkaten za vodo. Kar ostane prostega pa potem zatesniš, da nimaš vhoda v objekt za razno golazen. Pa premer daj kar malo večji, kot se ti zdi dovolj, ker je potem manj truda potrebnega ko alkaten cev skozi rineš.
Razmišljam, da bi kar alkaten cev položil pred vlivanjem betona, da ne bo potem težav z vlečenjem. Bom pa vseeno dal okrog distančno cev Stigmaflex, kot predlagate, da bo lahko plošča "dihala".
Za "izolacijo" lahko uporabiš:
Hvala za nasvet. Ga bom upošteval.
- rozancomanija
- Sodelavec

- Prispevkov: 62
- Pridružen: 25.9.2023 12:00
Vrni se na Konstruiranje in mehanika
Kdo je na strani
Po forumu brska: 0 registriranih uporabnikov in 2 gostov

