Pomoč pri izbiri pravih nosilcev in ustrezne AB plošče
Moderator: -M-
Pomoč pri izbiri pravih nosilcev in ustrezne AB plošče
Pozdravljeni,
lotevam se samogradnje manjše delavnice cca 5x7m z zobom na enem vogalu. Naredil sem že izkop cca 50cm in ga nasul s cca 40cm tampona 0-32mm. Tampon sem nasuval v plasteh in sproti utrjeval. Sedaj pa bi izdelal AB temeljno ploščo, ki bo postavljena direktno na utrjen tampon.
Nad AB temeljno ploščo pride jeklena konstrukcija, katere slike se nahajajo v priponkah. Na kratko, na jeklenih stebrih (bilo bi jih 7) bi bili prečni nosilci v razponu cca 5m. Na teh nosiclih bi potem bili špirovci, na katere pridejo OSB plošče (ali pa opaž) in potem sledi še pločevinasta trapezna kritina z izolacijo. Delavnica bo od zunaj zaprta z brunami, od znotraj z OSB ploščami. V delavnici bom imel manjše stroje, npr 4x po 500kg. Lokacija gradnje je Žalec.
Sedaj pa sledijo vprašanja:
1. Kako debela mora AB plošča?
Razmišljal sem, da bi mreže dal v dveh nivojih, vendar ne vem katere vrste mreže je zadostna. Svetovali so mi debelino 20cm.
Kako debeli morajo biti jekleni stebri
Razmišljal sem ob 10x10cm debeline 4 ali 5mm.
Kakšni bi morali biti prečni nosilci, da bi bili zadostno nosilni za streho, vetrove itd.?
Če bi šlo z običajnimi jeklenimi profili (pohištvene cevi) bi bilo najlažje za montažo, sicer pa kakšen izmed ojačanih profilov (H, ..).
Lepo prosim za pomoč pri določanju ustreznih materjalov. Za vsak nasvet in pomoč bom izredno hvaležen. Hvaležen bom tudi nasveta, kako najbolje vpeti stebre v beton (vrtanje in vijačenje, sidranje v beton in potem vijačenje, druga opcija?
Hvala že v naprej pa lep pozdrav.
Anže
lotevam se samogradnje manjše delavnice cca 5x7m z zobom na enem vogalu. Naredil sem že izkop cca 50cm in ga nasul s cca 40cm tampona 0-32mm. Tampon sem nasuval v plasteh in sproti utrjeval. Sedaj pa bi izdelal AB temeljno ploščo, ki bo postavljena direktno na utrjen tampon.
Nad AB temeljno ploščo pride jeklena konstrukcija, katere slike se nahajajo v priponkah. Na kratko, na jeklenih stebrih (bilo bi jih 7) bi bili prečni nosilci v razponu cca 5m. Na teh nosiclih bi potem bili špirovci, na katere pridejo OSB plošče (ali pa opaž) in potem sledi še pločevinasta trapezna kritina z izolacijo. Delavnica bo od zunaj zaprta z brunami, od znotraj z OSB ploščami. V delavnici bom imel manjše stroje, npr 4x po 500kg. Lokacija gradnje je Žalec.
Sedaj pa sledijo vprašanja:
1. Kako debela mora AB plošča?
Razmišljal sem, da bi mreže dal v dveh nivojih, vendar ne vem katere vrste mreže je zadostna. Svetovali so mi debelino 20cm.
Kako debeli morajo biti jekleni stebri
Razmišljal sem ob 10x10cm debeline 4 ali 5mm.
Kakšni bi morali biti prečni nosilci, da bi bili zadostno nosilni za streho, vetrove itd.?
Če bi šlo z običajnimi jeklenimi profili (pohištvene cevi) bi bilo najlažje za montažo, sicer pa kakšen izmed ojačanih profilov (H, ..).
Lepo prosim za pomoč pri določanju ustreznih materjalov. Za vsak nasvet in pomoč bom izredno hvaležen. Hvaležen bom tudi nasveta, kako najbolje vpeti stebre v beton (vrtanje in vijačenje, sidranje v beton in potem vijačenje, druga opcija?
Hvala že v naprej pa lep pozdrav.
Anže
- Priponke
-
- Načrt
- Načrt.png (81.41 KiB) Videno 12060 krat
- rozancomanija
- Sodelavec

- Prispevkov: 62
- Pridružen: 25.9.2023 12:00
Re: Pomoč pri izbiri pravih nosilcev in ustrezne AB plošče
Temeljna plošča mora biti večja od položaja stebrov, da boprostor za prirobico 4 kom. jekenih sider v izvrtino. Na tunanjo stran sider pa mora biri še armatra, da se rob plošče zaradi sidra ne odkruši.
Ali bodo špirovci leseni, morda jekleni?
Ali boš ploč. kritino vijačil na OSB ali na late?
Ali bodo špirovci leseni, morda jekleni?
Ali boš ploč. kritino vijačil na OSB ali na late?
Vrtičkarstvo je boljše od žerjavarstva
- Žerjavar
- Strokovnjak

- Prispevkov: 8666
- Pridružen: 19.5.2007 14:33
Re: Pomoč pri izbiri pravih nosilcev in ustrezne AB plošče
Hvala za pripombe in dodatna vprašanja, kar sem pozabil navesti v prvi objavi!
Stebre mislim dati 3-4 cm stran od roba in jih privariti na jekleno ploščo katero bi potem vijačil/sidral v sam temelj. V kolikor je potrebno še bolj od roba, bom dal še dlje od roba.. Primer montaže se nahaja v priponki.
Če razpon ni prevelik, sem mislil dati lesene špirovce.
Kritino bom vijačil v late, ki pridejo na OSB plošče, late pa bom vijačil čez OSB v špirovce.
Lep pozdrav.
Stebre mislim dati 3-4 cm stran od roba in jih privariti na jekleno ploščo katero bi potem vijačil/sidral v sam temelj. V kolikor je potrebno še bolj od roba, bom dal še dlje od roba.. Primer montaže se nahaja v priponki.
Ali bodo špirovci leseni, morda jekleni?
Če razpon ni prevelik, sem mislil dati lesene špirovce.
Ali boš ploč. kritino vijačil na OSB ali na late?
Kritino bom vijačil v late, ki pridejo na OSB plošče, late pa bom vijačil čez OSB v špirovce.
Lep pozdrav.
- Priponke
-
- Primer stebra.png (141.63 KiB) Videno 12015 krat
- rozancomanija
- Sodelavec

- Prispevkov: 62
- Pridružen: 25.9.2023 12:00
Re: Pomoč pri izbiri pravih nosilcev in ustrezne AB plošče
Steber se sidra, da je nagib stebra (veter, potres, ...) otežen v vse smeri. Po tvoji skici pa se zlahka nagne po diagonali navznoter.
Razpon 500 cm ni nobena ovira za lesene špirovce. Če bi jaz sebi gradil tako kot ti, bi postavil vse lesene špirovce pravokotno na tvoj predlog. So dolžine 500 in 400 cm. Trapezno kritino bi vijačil v špirovce, late pa niso potrebne. Ne pozabi na sekundarno kritino nad OSB, za zračni kanal pa skrbijo valovi (trapezi) kritine, na obeh koncih zaprti le z mrežico (za muhe, ose, ...)
Razpon 500 cm ni nobena ovira za lesene špirovce. Če bi jaz sebi gradil tako kot ti, bi postavil vse lesene špirovce pravokotno na tvoj predlog. So dolžine 500 in 400 cm. Trapezno kritino bi vijačil v špirovce, late pa niso potrebne. Ne pozabi na sekundarno kritino nad OSB, za zračni kanal pa skrbijo valovi (trapezi) kritine, na obeh koncih zaprti le z mrežico (za muhe, ose, ...)
Vrtičkarstvo je boljše od žerjavarstva
- Žerjavar
- Strokovnjak

- Prispevkov: 8666
- Pridružen: 19.5.2007 14:33
Re: Pomoč pri izbiri pravih nosilcev in ustrezne AB plošče
Hvala g. Žerjavar za vse nasvete.
Torej bom stebre še bolj premaknil v notranjost in jih vijačil na vseh štirih straneh. Koliko pa mora biti potem vijak odmaknjen od roba betona?
Kam pa bi potem špirovce vijačl? Bi v tem primeru potem rabil še jeklene profile pod špirovci, enako kot ležijo sedaj špirovci na moji skici? In če da, koliko bi jih potreboval?
Sedaj pa ostane še glavno vprašanje o debelini AB plošče, ter velikosti in tipu jeklenih stebrov/nosilcev.
Hvala in lep pozdrav.
Steber se sidra, da je nagib stebra (veter, potres, ...) otežen v vse smeri. Po tvoji skici pa se zlahka nagne po diagonali navznoter.
Torej bom stebre še bolj premaknil v notranjost in jih vijačil na vseh štirih straneh. Koliko pa mora biti potem vijak odmaknjen od roba betona?
Če bi jaz sebi gradil tako kot ti, bi postavil vse lesene špirovce pravokotno na tvoj predlog.
Kam pa bi potem špirovce vijačl? Bi v tem primeru potem rabil še jeklene profile pod špirovci, enako kot ležijo sedaj špirovci na moji skici? In če da, koliko bi jih potreboval?
Sedaj pa ostane še glavno vprašanje o debelini AB plošče, ter velikosti in tipu jeklenih stebrov/nosilcev.
Hvala in lep pozdrav.
- rozancomanija
- Sodelavec

- Prispevkov: 62
- Pridružen: 25.9.2023 12:00
Re: Pomoč pri izbiri pravih nosilcev in ustrezne AB plošče
rozancomanija napisal/-a: Koliko pa mora biti potem vijak odmaknjen od roba betona?
Kam pa bi potem špirovce vijačl?
Med sidrom in robom AB plošče mora biti vsaj ena palica armature. Bo med robom plošče in sidrom vsaj 6 cm.
Špirovce nasloniš na jekleni legi, ki povezujeta po dva stebra v smeri špirovcev, kot si jih ti predlagal. Tam si že narisal povezavo, sedaj bo le višje, poševno in močnejša.
Vrtičkarstvo je boljše od žerjavarstva
- Žerjavar
- Strokovnjak

- Prispevkov: 8666
- Pridružen: 19.5.2007 14:33
Re: Pomoč pri izbiri pravih nosilcev in ustrezne AB plošče
Hvala za dodatno pojasnilo, bom poskusil ponoviti, če prav razumem.
Torej stebri in povezave stebrov ostanejo enako kot v originalnem načrtu. Te povezave, ki pa držijo razmak med stebri, pa bi bili višje, poševno in še vedno privarjeni znotraj stebrov? Ali na vrhu stebrov? Ker potem se morajo špirovci verjetno začeti takoj na začetku trapezne kritine in zaključiti čisto na koncu. Torej špirovec mora biti vijačen tam kjer je že napušč.
Iz tega razloga me je prej zanimalo, če bi morale biti te povezave ki bi bile po novem poštevne na vrhu stebrov, kot so danes špirovci, le da bi jih bilo manj (le toliko, da bi na njih lahko pravokotno vijačil vse špirovce).
Špirovce nasloniš na jekleni legi, ki povezujeta po dva stebra v smeri špirovcev, kot si jih ti predlagal. Tam si že narisal povezavo, sedaj bo le višje, poševno in močnejša.
Torej stebri in povezave stebrov ostanejo enako kot v originalnem načrtu. Te povezave, ki pa držijo razmak med stebri, pa bi bili višje, poševno in še vedno privarjeni znotraj stebrov? Ali na vrhu stebrov? Ker potem se morajo špirovci verjetno začeti takoj na začetku trapezne kritine in zaključiti čisto na koncu. Torej špirovec mora biti vijačen tam kjer je že napušč.
Iz tega razloga me je prej zanimalo, če bi morale biti te povezave ki bi bile po novem poštevne na vrhu stebrov, kot so danes špirovci, le da bi jih bilo manj (le toliko, da bi na njih lahko pravokotno vijačil vse špirovce).
- rozancomanija
- Sodelavec

- Prispevkov: 62
- Pridružen: 25.9.2023 12:00
Re: Pomoč pri izbiri pravih nosilcev in ustrezne AB plošče
Najbolje, da narediš popravljeno 3D skico- Vriši tudi kritino (obris) in podaj mere tlorisne velikosti. Lege so lahko na vrh stebrov ali le med njimi. Morajo pa stebri imeti tudi prečno povezavo, ki je lahko nekaj nižje od lege. Prikaži (ločeno) spoj stebra z lego in povezavo (konstruktivno primerna rešitev), tudi spoj stebra z temeljno ploščo.
Upam, da imaš tampon na vse strani od AB plošče po še za debelino tampona širše.
Imaš razlog za uporabo OSB - les (deske) bo pol ceneje?
Ali boš delal sam s prijateji?
Upam, da imaš tampon na vse strani od AB plošče po še za debelino tampona širše.
Imaš razlog za uporabo OSB - les (deske) bo pol ceneje?
Ali boš delal sam s prijateji?
Vrtičkarstvo je boljše od žerjavarstva
- Žerjavar
- Strokovnjak

- Prispevkov: 8666
- Pridružen: 19.5.2007 14:33
Re: Pomoč pri izbiri pravih nosilcev in ustrezne AB plošče
Bom naredil popravljeno skico z vsemi elementi tekom današnjega ali jutrišnjega dne.
Vse kar bo jeklene konstrukcije bo varjeno med sabo, edino stebri bojo vijačeni/sidrani v AB ploščo. Lesene špirovce pa sem prav tako mislil vijačiti v jekleno konstrukcijo.
Da, tampon je širši za cca 40cm okoli AB plošče, saj potrebujemo prostor za "šoplanje" plošče ter kasneje je v planu tudi pohodna površina okoli objekta za debelino 1 prane plošče, torej 40 cm. Na koncu tampona bojo seveda prišli tudi robniki.
Na strehi sem mislil uporabiti OSB za namen namestitve sekundarne kritine in da bo površina pohodna v času dela. Odločitev še ni dokončna. Če bo z lesom pol cenej, potem bo verjetno to končna izbira.
Delal bom s prijatelji in tastom, ki ima izkušnje z gradbenimi deli in varjenjem, prekrivanjem strehe.
Skrbi imam zato v glavnem s staičnimi izračunni, saj želim:
* da bo AB plošča dovolj debela, da bo premostila težo objekta (ki ne bo tako velika kot pri zidanih objektih), vremenske vplive (sneg in veter, ki vsako leto bolj piha), ter kasnejše posedanje ali morebitno dvigovanje zaradi kakšne zmrzali.
* da bojo jekleni stebri (pohištvene cevi) in lege (tudi morda pohištvene cevi) in špirovci dovolj
močni in nosilni za vremenske razmere (sneg, veter).
Hvala za vaš čas in vse nasvete.
Prikaži (ločeno) spoj stebra z lego in povezavo (konstruktivno primerna rešitev), tudi spoj stebra z temeljno ploščo.
Vse kar bo jeklene konstrukcije bo varjeno med sabo, edino stebri bojo vijačeni/sidrani v AB ploščo. Lesene špirovce pa sem prav tako mislil vijačiti v jekleno konstrukcijo.
Upam, da imaš tampon na vse strani od AB plošče po še za debelino tampona širše.
Da, tampon je širši za cca 40cm okoli AB plošče, saj potrebujemo prostor za "šoplanje" plošče ter kasneje je v planu tudi pohodna površina okoli objekta za debelino 1 prane plošče, torej 40 cm. Na koncu tampona bojo seveda prišli tudi robniki.
Imaš razlog za uporabo OSB - les (deske) bo pol ceneje?
Na strehi sem mislil uporabiti OSB za namen namestitve sekundarne kritine in da bo površina pohodna v času dela. Odločitev še ni dokončna. Če bo z lesom pol cenej, potem bo verjetno to končna izbira.
Ali boš delal sam s prijateji?
Delal bom s prijatelji in tastom, ki ima izkušnje z gradbenimi deli in varjenjem, prekrivanjem strehe.
Skrbi imam zato v glavnem s staičnimi izračunni, saj želim:
* da bo AB plošča dovolj debela, da bo premostila težo objekta (ki ne bo tako velika kot pri zidanih objektih), vremenske vplive (sneg in veter, ki vsako leto bolj piha), ter kasnejše posedanje ali morebitno dvigovanje zaradi kakšne zmrzali.
* da bojo jekleni stebri (pohištvene cevi) in lege (tudi morda pohištvene cevi) in špirovci dovolj
močni in nosilni za vremenske razmere (sneg, veter).
Hvala za vaš čas in vse nasvete.
- rozancomanija
- Sodelavec

- Prispevkov: 62
- Pridružen: 25.9.2023 12:00
Re: Pomoč pri izbiri pravih nosilcev in ustrezne AB plošče
Evo, prilagam novo sliko, če sem vas prav razumel.
Spoj vseh jeklenih profilov med sabo bo s pomočjo varjenja. Tam, kjer ploskve ne pašejo skupaj zaradi naklona, bi potem profile varil skupaj s pomočjo kotnih jeklenih ploščic in ravnih ploščic.
Podlaga je enaka kot prej (7 stebrov in 3 lege). Na lege sedaj pridejo 3 železni špirovci, na njih pa pravokotni leseni špirovci, na njih potem les, sekundarna kritina in potem trapezna pločevinasta kritina.
Sem prav razumel vaš predlog, g. Žerjavar?
Glede na narisano se vseeno bolj nagibam na prvotni predlog izvedbe.
Lep pozdrav.
Spoj vseh jeklenih profilov med sabo bo s pomočjo varjenja. Tam, kjer ploskve ne pašejo skupaj zaradi naklona, bi potem profile varil skupaj s pomočjo kotnih jeklenih ploščic in ravnih ploščic.
Podlaga je enaka kot prej (7 stebrov in 3 lege). Na lege sedaj pridejo 3 železni špirovci, na njih pa pravokotni leseni špirovci, na njih potem les, sekundarna kritina in potem trapezna pločevinasta kritina.
Sem prav razumel vaš predlog, g. Žerjavar?
Glede na narisano se vseeno bolj nagibam na prvotni predlog izvedbe.
Lep pozdrav.
- Priponke
-
- Načrt v2.png (198.49 KiB) Videno 11882 krat
-
- Ptičji pogled.png (689.71 KiB) Videno 11882 krat
- rozancomanija
- Sodelavec

- Prispevkov: 62
- Pridružen: 25.9.2023 12:00
Re: Pomoč pri izbiri pravih nosilcev in ustrezne AB plošče
Dodajam še skice vpetja v AB ploščo in spajanje jeklene konstrukcije.
- Priponke
-
- Vpetje stebrov
- Vpetje stebrov.png (182.73 KiB) Videno 11869 krat
-
- Vpetje v ploščo
- Vpetje v ploščo.png (325.27 KiB) Videno 11869 krat
-
- Spoji od daleč
- Spoji od daleč.png (221.68 KiB) Videno 11869 krat
- rozancomanija
- Sodelavec

- Prispevkov: 62
- Pridružen: 25.9.2023 12:00
Re: Pomoč pri izbiri pravih nosilcev in ustrezne AB plošče
Pa še pogled spoja od spodaj.
- rozancomanija
- Sodelavec

- Prispevkov: 62
- Pridružen: 25.9.2023 12:00
Re: Pomoč pri izbiri pravih nosilcev in ustrezne AB plošče
Očitno se nisva razumela. Prilagam skico tlorisa jeklene konstrukcije. Ti dodaš mere za kritino in položaj stebrov.
Informative dimenzije nosilcev: steber KC 120 , lega PC 150 x 100ali IPE 180, povezava KC 100.
Informative dimenzije nosilcev: steber KC 120 , lega PC 150 x 100ali IPE 180, povezava KC 100.
- Priponke
-
- rozabc23.jpg (9.79 KiB) Videno 11868 krat
Vrtičkarstvo je boljše od žerjavarstva
- Žerjavar
- Strokovnjak

- Prispevkov: 8666
- Pridružen: 19.5.2007 14:33
Re: Pomoč pri izbiri pravih nosilcev in ustrezne AB plošče
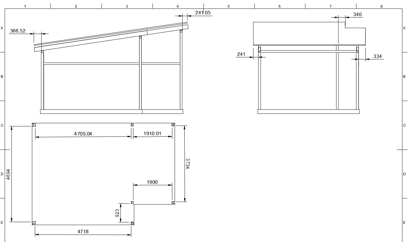
G. Žerjavar, hvala za skico, sedaj pa mislim da razumem, kako ste mislili.
Prilagam novo skico zunanjega pogleda
Prilagam še skico mer, kjer se vidi pozicija (razmaki) stebrov in napušč strehe.
Upam da imate sedaj vse potrebne podatke.
Lep pozdrav.
Prilagam novo skico zunanjega pogleda
Prilagam še skico mer, kjer se vidi pozicija (razmaki) stebrov in napušč strehe.
Upam da imate sedaj vse potrebne podatke.
Lep pozdrav.
- rozancomanija
- Sodelavec

- Prispevkov: 62
- Pridružen: 25.9.2023 12:00
Re: Pomoč pri izbiri pravih nosilcev in ustrezne AB plošče
Vzdolžna povezava stebrov (izpod lege) ni potrebna, lega dovolj povezuje stebre. Kot si jo narisal bi bilo tudi nerodno, če bi si pozneje zamislil dodatno okno.
Ne vidim prečne povezave med tremi stebri - morda jo zakriva vrisani špirovec.
Odloči se, ali bo lega PC ali IPE. Razlika v ceni je malenkostna, je pa pri PC treba privariti po dve ušesi za privijačenje vsakega špirovca, pri IPE se le prevrta pasnica. V obeh primerih se lega ne vidi, je znotraj zunanje stene. Je nekaj razlike v oblikovanju varjenega vozlišča na vrhu stebra.
Ne vidim prečne povezave med tremi stebri - morda jo zakriva vrisani špirovec.
Odloči se, ali bo lega PC ali IPE. Razlika v ceni je malenkostna, je pa pri PC treba privariti po dve ušesi za privijačenje vsakega špirovca, pri IPE se le prevrta pasnica. V obeh primerih se lega ne vidi, je znotraj zunanje stene. Je nekaj razlike v oblikovanju varjenega vozlišča na vrhu stebra.
Vrtičkarstvo je boljše od žerjavarstva
- Žerjavar
- Strokovnjak

- Prispevkov: 8666
- Pridružen: 19.5.2007 14:33
Vrni se na Konstruiranje in mehanika
Kdo je na strani
Po forumu brska: 0 registriranih uporabnikov in 2 gostov

